Tunnelrör i cirkulär form för installation i naturliga eller anlagda vallar. Rutschkanans längd är 3,00 m och diametern 0,85 m. In- och utgång är skurna vinkelrätt mot tunnelns axel. Tunneln är helt tillverkad av matt rostfritt stål.
Filter
Pris
Betyg
Material
Kategori
Status
Tunnel KANALO 300
Pris vid förfrågan
Tunnelrör för installation i vall, 3,0 m långt i rostfritt stål.
Produktbeskrivning
Tunnelrör i cirkulär form för installation i naturliga eller anlagda vallar. Rutschkanans längd är 3,00 m och diametern 0,85 m. In- och utgång är skurna vinkelrätt mot tunnelns axel. Tunneln är helt tillverkad av matt rostfritt stål.
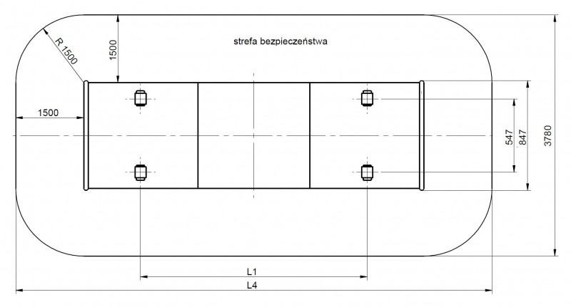
Säkerhetsytans bredd
3.78
Säkerhetsytans längd
6
Konstruktionens bredd
0.85
Konstruktionens längd
3
Konstruktionens höjd
0.85
Produkten består av
Matt rostfritt stål (0 30 4), tjocklek stål plåt 2 mm
Säkerhetsyta
Säkerhetsytans bredd
3.78
Säkerhetsytans längd
6
Konstruktionens bredd
0.85
Konstruktionens längd
3
Konstruktionens höjd
0.85
Produkten består av
Matt rostfritt stål (0 30 4), tjocklek stål plåt 2 mm
Säkerhetsyta
Relaterade produkter
-
Tunnel TUNELO 200
Pris vid förfrågan -
Tunnel KANALO 500
Pris vid förfrågan -
Tunnel TUNELO 250
Pris vid förfrågan -
Kryptunnlar Tunnel Froggy
66 450 kr








