Temalek Aktivitetsväggar Courier Play, Djur, Cockpit

39 050 kr

Pedagogiska aktivitetsväggar som tränar finmotorik, igenkänning och rollspel. Anpassade för inkluderande lek och barn med olika behov.

- +
Artikelnummer LEK0101171 Kategori Etikett Varumärke:

Produktbeskrivning

Aktivitetsväggarna Courier Play, Animals och Cockpit är pedagogiska lekpaneler som erbjuder barn en mängd engagerande och utvecklande aktiviteter. Varje vägg är utformad för att stimulera kreativitet, nyfikenhet och inlärning genom interaktiv lek.

Cockpit-väggen innehåller rörliga spakar och roterande hjul som låter barn känna sig som piloter, bilförare eller lokförare. Animals-väggen hjälper barn att identifiera 12 olika djur, deras spår och föredragna föda genom matchning av bilder på roterande kuber.

Courier Play-väggen utvecklar finmotorik och koordination genom ett spel där barn kör en lastbil mellan två lagerbyggnader. Samtliga väggar är lämpliga för barn med särskilda behov och passar utmärkt i inkluderande lek- och lärmiljöer.

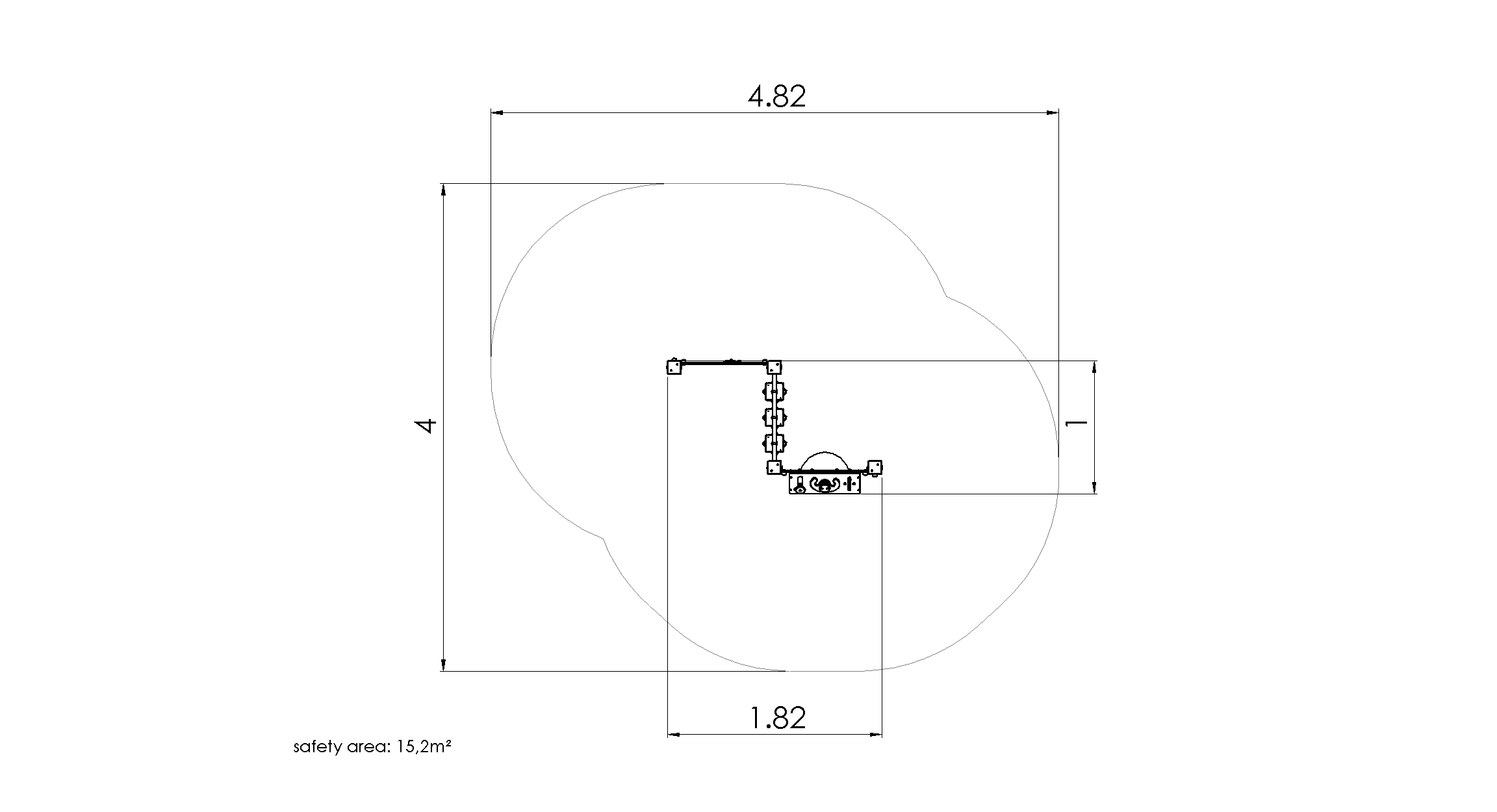
Säkerhetsytans bredd 4
Säkerhetsytans längd 4.82
Konstruktionens bredd 1.82
Konstruktionens längd 1
Konstruktionens höjd 1.26
Rekommenderad ålder 1+

Säkerhetsyta

Säkerhetsyta

Sidovy

Sidovy
  • RAL-koder (PDF) PDF
  • DWG-ritning DWG

Aktivitetsväggarna Courier Play, Animals och Cockpit är pedagogiska lekpaneler som erbjuder barn en mängd engagerande och utvecklande aktiviteter. Varje vägg är utformad för att stimulera kreativitet, nyfikenhet och inlärning genom interaktiv lek.

Cockpit-väggen innehåller rörliga spakar och roterande hjul som låter barn känna sig som piloter, bilförare eller lokförare. Animals-väggen hjälper barn att identifiera 12 olika djur, deras spår och föredragna föda genom matchning av bilder på roterande kuber.

Courier Play-väggen utvecklar finmotorik och koordination genom ett spel där barn kör en lastbil mellan två lagerbyggnader. Samtliga väggar är lämpliga för barn med särskilda behov och passar utmärkt i inkluderande lek- och lärmiljöer.

Säkerhetsytans bredd 4
Säkerhetsytans längd 4.82
Konstruktionens bredd 1.82
Konstruktionens längd 1
Konstruktionens höjd 1.26
Rekommenderad ålder 1+

Säkerhetsyta

Säkerhetsyta

Sidovy

Sidovy
Färg

FORF, FORP, FORR, NAT, SUM

Material

MF, PE

  • RAL-koder (PDF) PDF
  • DWG-ritning DWG
Rulla till toppen