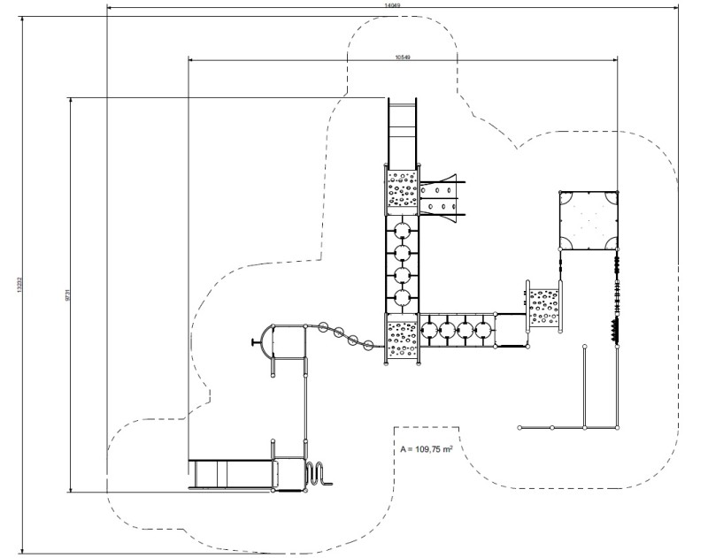
Stort integrerat lekset med fem torn, rutschkanor, broar, klätterväggar, ramper och flera sensoriska paneler. Konstruktionen är svetsad i rostfritt stål utan klämmor och anpassad för intensiv användning. Golvet är tillverkat av halkfri HPL för maximal säkerhet och tillgänglighet.
Filter
Pris
Betyg
Material
Kategori
Status
Inkluderande spelset DOMO-I 4-1
Pris vid förfrågan
Omfattande inkluderande lekset med hög sensorisk variation.
Produktbeskrivning
Stort integrerat lekset med fem torn, rutschkanor, broar, klätterväggar, ramper och flera sensoriska paneler. Konstruktionen är svetsad i rostfritt stål utan klämmor och anpassad för intensiv användning. Golvet är tillverkat av halkfri HPL för maximal säkerhet och tillgänglighet.
Konstruktionens bredd
9.73
Konstruktionens längd
10.55
Konstruktionens höjd
3.73
Max. fallhöjd
2.5
Produkten består av
Konstruktion och additional elements (handrails, handles, brackets, etc.) are Gjord av rostfritt stål AISI 304, med pipesdiameters 7 6.1 x 2.0 mm (including ten bent rör), 4 2.4 x 3.6 mm, och 3 3.7 x 2.0 mm, och profiles: 4 0 x 4 0 x 2.0 mm,
Säkerhetsyta
Konstruktionens bredd
9.73
Konstruktionens längd
10.55
Konstruktionens höjd
3.73
Max. fallhöjd
2.5
Produkten består av
Konstruktion och additional elements (handrails, handles, brackets, etc.) are Gjord av rostfritt stål AISI 304, med pipesdiameters 7 6.1 x 2.0 mm (including ten bent rör), 4 2.4 x 3.6 mm, och 3 3.7 x 2.0 mm, och profiles: 4 0 x 4 0 x 2.0 mm,
Säkerhetsyta
Relaterade produkter
-
Sensorisk bräda SENSA 6
Pris vid förfrågan -
Saturnusgunga
Pris vid förfrågan -
Rutschkana Gliti H2400 inklud
Pris vid förfrågan -
Inkluderande sandlåda KOTO 1B
Pris vid förfrågan






