Gunga Robinia 10 kombinerar en fågelbosits och ett skopsäte i en stabil konstruktion av ROBINIA-trä. Gungan ger både social lek och trygg gungning för mindre barn. Dekorativa element med skogsmotiv förstärker det naturliga uttrycket.
Filter
Pris
Betyg
Material
Kategori
Status
Gunga Robinia 10
Pris vid förfrågan
Dubbel robiniagunga med fågelbosits och skopsäte.
Produktbeskrivning
Gunga Robinia 10 kombinerar en fågelbosits och ett skopsäte i en stabil konstruktion av ROBINIA-trä. Gungan ger både social lek och trygg gungning för mindre barn. Dekorativa element med skogsmotiv förstärker det naturliga uttrycket.
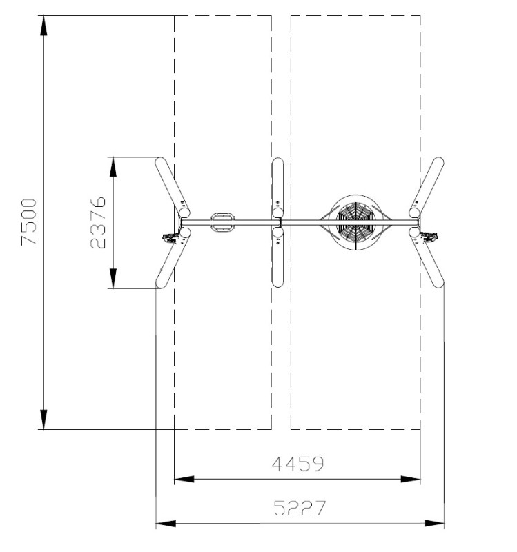
Säkerhetsytans bredd
5.22
Säkerhetsytans längd
7.5
Konstruktionens bredd
4.45
Konstruktionens längd
2.37
Konstruktionens höjd
2.48
Max. fallhöjd
1.37
Produkten består av
Konstruktion Gjord av ROBINIA trä, balkar ungefär 1 6 cm tjock,
Säkerhetsyta
Säkerhetsytans bredd
5.22
Säkerhetsytans längd
7.5
Konstruktionens bredd
4.45
Konstruktionens längd
2.37
Konstruktionens höjd
2.48
Max. fallhöjd
1.37
Produkten består av
Konstruktion Gjord av ROBINIA trä, balkar ungefär 1 6 cm tjock,
Säkerhetsyta
Relaterade produkter
-
Gungstativ i metall med 2 däckgungor
26 687 kr -
Gungsits Fågelbo, Ø120 cm med kedjor
22 786 kr





