Klätteranordning med rep för ungdomar och vuxna. Tränar hela kroppen och förbättrar styrka, grepp och koordination. Tillverkad i galvaniserat och pulverlackerat stål.
Filter
Pris
Betyg
Material
Kategori
Status
Dragrep
Pris vid förfrågan
Klätterrep för helkroppsträning utomhus.
Produktbeskrivning
Klätteranordning med rep för ungdomar och vuxna. Tränar hela kroppen och förbättrar styrka, grepp och koordination. Tillverkad i galvaniserat och pulverlackerat stål.
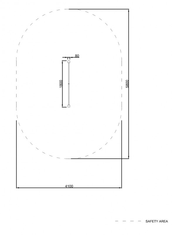
Säkerhetsytans bredd
4.1
Säkerhetsytans längd
5.8
Konstruktionens bredd
0.08
Konstruktionens längd
1.8
Konstruktionens höjd
3.1
Max. fallhöjd
2
Produkten består av
Galvaniserat och pulverMålad stål - devices are Målad in green (RAL 6 01 3) och grey (RAL 9 00 6). On request other RAL colors may be använd.
Säkerhetsyta
Säkerhetsytans bredd
4.1
Säkerhetsytans längd
5.8
Konstruktionens bredd
0.08
Konstruktionens längd
1.8
Konstruktionens höjd
3.1
Max. fallhöjd
2
Produkten består av
Galvaniserat och pulverMålad stål - devices are Målad in green (RAL 6 01 3) och grey (RAL 9 00 6). On request other RAL colors may be använd.
Säkerhetsyta
Relaterade produkter
-
Träningsryttare 22296
Pris vid förfrågan -
Träningsryggförstärkare 22357
Pris vid förfrågan -
Perra
331 500 kr -
Träningsorbitrek 22265
Pris vid förfrågan




